2017 – 2021

Cube Brick

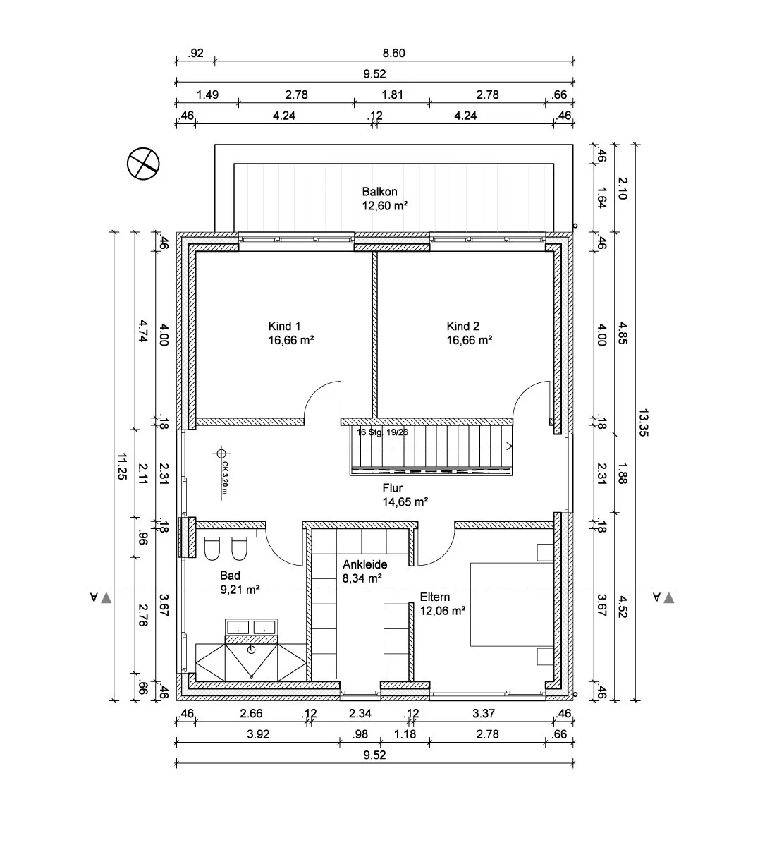
as Einfamilienhaus in einem modernen Design ist auf zwei Ebenen verteilt. Die Fassaden mit großen Fenstern garantieren eine maximale Ausleuchtung der Räume. Die Außenwände sind in massiver Bauweise geplant, um Wärmeverlust und Lärm zu minimieren. Die verglasten Flächen im Erdgeschoss ermöglichen es, den Innenraum des Hauses nach außen zu erweitern.

Status: fertiggestellt
Bauherr: privat
Beteiligte: BAT Architekte, IBA Hamburg

Previous
Previous

Virtual Tectonics

Next
Next

Sülldorfer Landstraße