2016 - 2018

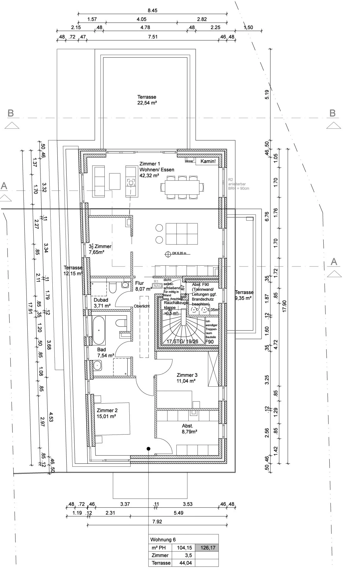
Mehrfamilienhaus Röntgenstraße

Bei dem Bauvorhaben handelt es sich um den Neubau eines modernen Mehrfamilienhaueses mit Eigentumswohnungen in Hamburg-Fuhlsbüttel.
Die geradlinige Architektursprache wird durch Erkervorsprünge und Ziermauerwerk aufgelockert.

Status: realisiert
Bauherr: privat
Beteiligte: BAT Architekten

Previous
Previous

Roseliusallee

Next
Next

Chrysanderstraße